Financieel
- Prijs
- € 175.000,00
- Beschikbaarheid
- Mits inachtneming huurders
- Gemeenschappelijke kosten
- € 145,00/maand
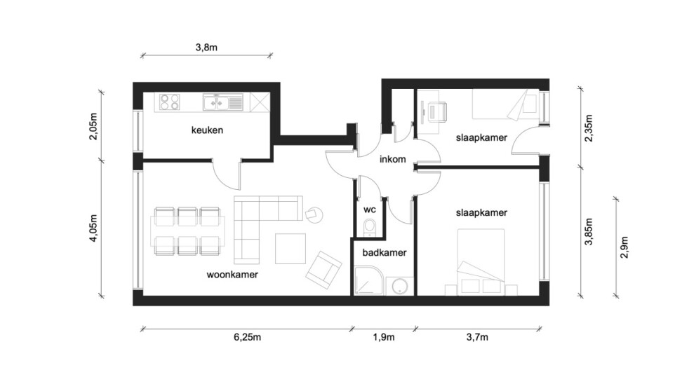
Op de vijfde verdieping van een goed onderhouden gebouw vindt u dit instapklare en recent gerenoveerde appartement. Dankzij de hoge ligging geniet u van veel lichtinval en een open zicht, wat zorgt voor een ruimtelijk gevoel. Bij het betreden van het appartement komt u in de inkomhal met handige berging en een apart gastentoilet. De ruime leefruimte met grote ramen biedt een aangenaam zicht en sluit aan op de keuken. De badkamer is uitgerust met een douche, wastafel en voorziening voor een wasmachine en droogkast. Achteraan bevinden zich twee volwaardige slaapkamers, beide met rolluiken, die uitgeven op een terras. Extra troef: op het gelijkvloers beschikt u over een private, ruime berging. De verwarming en het waterverbruik zijn gemeenschappelijk, maar worden geregistreerd via aparte tellers. Momenteel is het appartement verhuurd aan €785/maand + €145/maand voor gemeenschappelijke kosten en een provisie voor de verwarming. Een interessante investering met een onmiddellijk rendement!