.jpg)
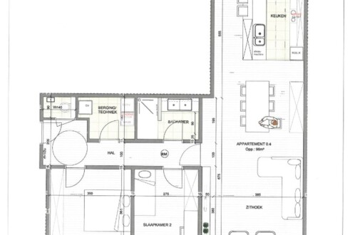
Appartement
2018 Antwerpen
- Kamers2
- Oppervlakte92m²